Listwa podokienna
Listwa podokienna
W górnej części zwanej głowicą wpuszczona jest specjalna listwa z PCV w kształcie litery „T”. Listwa – usztywnia cały element
– stanowi podstawę do przyklejenia specjalnej taśmy rozprężnej w klasie BG 1
– stanowi element do którego można mechanicznie przykręcić parapet zewnętrzny
Głowica jest wyfrezowana z zapięciami i ściśle dopasowana do konkretnego systemu okiennego dla prawidłowego uszczelnienia ramy okiennej z profilem podokiennym. Bardzo ważnym elementem jest zintegrowana z całością listwa zaczepowa z twardego PCV do połączenia za pomocą stalowych kotew do muru.

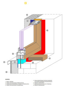
Profil drzwiowy
Profil drzwiowy
– usztywnia cały element
– stanowi podstawę do przyklejenia specjalnej taśmy rozprężnej w klasie BG 1
– stanowi element do którego można mechanicznie przykręcić parapet zewnętrzny
Głowica jest wyfrezowana z zapięciami i ściśle dopasowana do konkretnego systemu okiennego dla prawidłowego uszczelnienia ramy okiennej z profilem podokiennym. Specjalne wycięcia na płaszczyznach profilu zwiększają powierzchnię przyklejania do muru oraz parapetu wewnętrznego i zewnętrznego.

Profil podokienny
Profil podokienny
– usztywnia cały element
– stanowi podstawę do przyklejenia specjalnej taśmy rozprężnej w klasie BG 1
– stanowi element do którego można mechanicznie przykręcić parapet zewnętrzny
Głowica jest wyfrezowana z zapięciami i ściśle dopasowana do konkretnego systemu okiennego dla prawidłowego uszczelnienia ramy okiennej z profilem podokiennym. Specjalne wycięcia na płaszczyznach profilu zwiększają powierzchnię przyklejania do muru oraz parapetu wewnętrznego i zewnętrznego.

Zespół bloku podokiennego
Zespół bloku podokiennego
Budynki projektowane w standardzie NF40 i NF15 muszą spełnić bardzo rygorystyczne wymagania. Wartość współczynnika Ψe dla połączenia okien z murem w budynkach o standardzie NF15 wynosi 0,01 W/(m²·K) natomiast w standardzie NF40 W/(m²·K). Aby uzyskać tą wartości 0,01 W/(m²·K) w praktyce musi być zastosowany montaż w warstwie ocieplenia.
Dodatkowo wymagana jest szczelność budynków, określona również w Warunkach Technicznych gdzie zalecana szczelność dla budynków z wentylacją mechaniczną lub klimatyzacją która wynosi n 50 < 1,5 1/h dla budynku pasywnego nie może przekraczać 0,6 1/h.





















